Environmental Engineering in Kansas
Sustainable Solutions for Cleaner, Safer Communities
Protecting natural resources while meeting regulatory standards requires both technical expertise and practical insight.
Earles Engineering & Inspection delivers environmental engineering solutions that help municipalities, industries, and developers manage water responsibly and sustainably.
With a focus on compliance, efficiency, and long-term performance, our team designs systems that safeguard public health and the environment, ensuring your community’s infrastructure meets today’s needs and tomorrow’s challenges.
Environmental Engineering Services in Kansas
Earles Engineering & Inspection provides environmental engineering solutions that protect public health and support long-term sustainability.
Our team specializes in projects for:
- Water treatment plants
- Wastewater treatment plants
With decades of experience across Kansas and the Midwest, our engineers design and oversee reliable water and wastewater treatment systems that meet strict regulatory standards while optimizing performance, cost, and efficiency.
Responsibly manage your water with environmental engineers who truly understand the needs of your project.
Featured Environmental Engineering Projects
New Well & Well House – Ingalls, KS
US-56 Waterline – Rolla, KS
Water Treatments – Scott City, KS
Waste Water Treatment Ulysses, Kansas
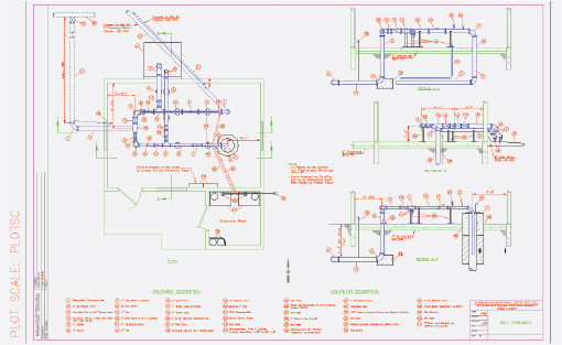
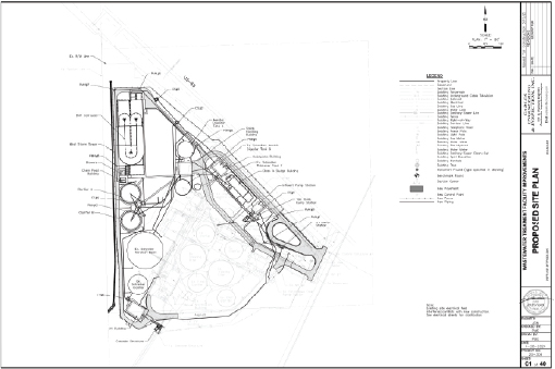
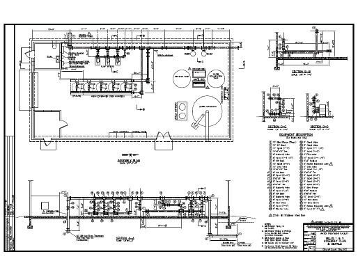
Wastewater Treatment Facility Improvements | Pittsburg, KS
Wastewater Treatment Lagoon | Meada, KS
Engineering a Cleaner Tomorrow
At Earles Engineering & Inspection, we understand that every environmental project carries a responsibility to the community.
Our experienced environmental engineers combine proven design practices with innovative solutions to deliver reliable, compliant systems that last.
Whether improving existing infrastructure or developing new facilities, we help you protect vital resources while maintaining efficiency and cost control.
Partner with Earles Engineering & Inspection, where integrity and expertise shape sustainable progress.